建筑识图实例,识读其它楼层
识读其它楼层
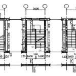
一、识读二层平面图
下图为二层平面图,图号是建-04。


与首层平面图不同之处:
1.有两个出入口雨罩轮廓线。
2.楼面标高为2.7m,卫生间及厨房楼面标高为2.69m。
3.楼梯间的梯段能看到向上一层行走的部分踏步(用”上”及箭头表示),也能看到向首层行走的第二跑的全部及第一跑的部分踏步(用”下”及箭头表示),以及休息平台,休息平台的标高为1.68m。
4.F轴外墙有两个窗,代号为LC3,是休息平台处外墙窗,满足楼梯间的采光和通风要求。
5.1轴、13轴外墙窗为LC4。
二、屋顶平面图
下图为屋顶平面图。

1.屋顶平面形状大致为一矩形,1轴、13轴为竖直的女儿墙,A轴、G轴为倾斜的女儿墙。
2.屋脊线将屋顶排水划分为三个区,为有组织排水。
(1)1轴~4轴为一个排水区,向1轴处排水,纵向排水坡度为2%,横向排水坡度为1%,在1轴距A轴2100mm处有一雨水口排水。
(2)4轴~10轴为一个排水区,向中间7轴处排水,排水坡度为2%,为内排水。
(3)10~13轴为一个排水区,排水布置与1~4轴相对称。
3.有六个风道出屋面,屋面有一个上人孔。

声明:本站的资料范例为参考学习,不同地区的表格虽有不同,但做法大同小异!同步公众号内容,不断更新中。一些表格找不到就是暂时没有,请见凉



