首页
基础课程
播放器
关于我们
资料入门
资料知识
房建范例
施工记录
登录
工艺工法
施工技术学习
分类
基础课程
9
安全资料
39
最新
热度
更新
评论
随机
工艺工法
给排水系统安装施工工艺
一、室内管线的布置原则 由于该工程管道众多、安装复杂 , 考虑管道的正确排列是管路安装中的一...
工艺工法
12种管道过滤器安装与维护
一、Y型过滤器 1 、 Y 型过滤器属于管道粗过滤器,可用于液体、气体或其他介质大颗粒物过滤...
工艺工法
图说砖混结构和框架结构的区别和特点
砖混结构 ,顾名思义,“砖”,指的是一种统一尺寸的建筑材料,也有其他尺寸的异型粘土砖、如空心...
工艺工法
什么是砖模?
1、 什么是砖胎模 砖胎模就是用标准砖制作成模板,待有一定强度后,进行混凝土的浇筑工作; 砖...
工艺工法
断路器上面的各种符号都代表什么
NM1-100S/3300 N 表示企业代号 M 表示塑壳式断路器 ...
工艺工法
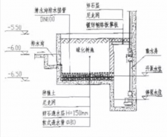
防雷接地施工第一步
焊缝表面不容许有夹渣、气孔、裂缝现象出现。 GB 50303-2015 建筑...
4/7
上一页
1
2
3
4
5
6
下一页
首页
分类
顶部
全部
安全范例
使用帮助
基础课程
安全资料
资料入门
房建范例
市政范例
房建工序报验
工艺工法
办公技巧
必备资料
安全范例
安全资料
安全资料
工程识图
工艺工法
市政
市政范例
必备资料
房建
房建
房建范例
施工
施工记录
管理技术
行业动态
资料入门
资料知识
道路